必須
クラブ特典
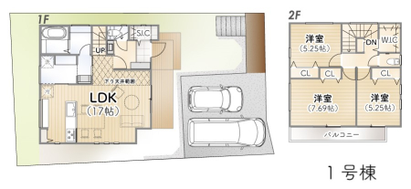
弊社グループ会社で建てた新築一戸建てを会員様限定で先行配信いたします!人気の物件はホームページ掲載前に成約になってしまうこともございますので、お早めにお問合せ下さい!
早めにチェック!
予告物件会員様先行公開中
新築一戸建て
中古一戸建て
中古マンション
土地
地域密着を活かした安心の売却相談サポート!!
住所:〒207-0015東京都東大和市中央4丁目962-7TEL:0120-963-867
マイページ
会員登録
来店予約
物件リクエスト
TEL
0120-963-867