東村山市多摩湖町1丁目全3棟・新築住宅・1号棟 東京都東村山市多摩湖町1丁目|4,880万円の新築一戸建て|株式会社住宅市場
| 価格 | 4,880万円 ![]() |
||||
|---|---|---|---|---|---|
| 所在地 | 東京都東村山市多摩湖町1丁目
この地域周辺の物件を見る |
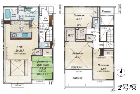
土地面積 | 142.86m² (43.21坪) | 建物面積 | 110.38u |
| 築年月 | 2026年4月築 | 間取り | 5LDK (LDK19/洋室4.5/洋室7.25/洋室6/洋室5.5/洋室4.5) | ||
| 交通 |
西武西武園線 西武園 徒歩8分
西武多摩湖線 多摩湖 徒歩10分/停歩0分 |
||||
| 特徴 |
|
|---|---|
| セールスコメント | - |
| 採光面 | - | 構造/階数 | 木造/地上2階建 |
|---|---|---|---|
| 建ぺい率 | 50% | 容積率 | 100% |
| 駐車場 | - | 現況/引渡し | 建築中/2026年5月中旬 |
| 土地権利 | - | 私道負担面積 | - |
| 接道状況 | 接道: 東 公道 道路幅: 6m | 用途地域 | 第一種低層住居専用地域 - - |
| セットバック | - | 法令上の制限 | 第一種高度地区、景観法、準防火地域、宅地造成規制法 |
| 地目 | 宅地 | 地勢 | |
| 建築確認番号 | 第R07SHC125494号 | 都市計画 | - |
| 取引態様 | 仲介 | ||
| 情報更新日 | 2026年03月13日 | 次回更新日 | 2026年03月27日 |
| リフォーム箇所 | リフォーム時期 | ||
| リフォーム補足 | |||
| 備考 | ●網戸11万円(税込)で設置可(オプション) ●位置指定道路 番号754 幅員:6m ●太陽光発電システムについては、東京ガスが提供するサービス契約(イグニチャーソーラ ーフラットプランwith東栄住宅)となります。 ●サービス契約期間:10年間(月額サービス料:5,400円/月補助金運用になる場合、月額サービス料0円 |
||
| 小学校区 | 東村山市立回田小学校 (東京都東村山市) この学区の他の物件を見る |
中学校区 | 東村山第四中学校 (東京都東村山市) この学区の他の物件を見る |
|---|
| 価格 | 万円 | ||
|---|---|---|---|
| 年利率 | % |
||
| ボーナス払い | 返済年数 | ||
| 頭金 | 直接入力する | 万円 | |

毎月のご返済額 |
ボーナス(×年2回) |
物件価格4,880万円 |
![]() |
![]() |
東村山市多摩湖町1丁目
4680万円〜5080万円 |
クラブ特典
弊社グループ会社で建てた
新築一戸建てを会員様限定で
先行配信いたします!
人気の物件はホームページ掲載前に成約になってしまうこともございますので、
お早めにお問合せ下さい!
早めにチェック!
予告物件
会員様先行
公開中
-