東村山市廻田町4丁目・新築住宅 東京都東村山市廻田町4丁目|5,130万円の新築一戸建て|株式会社住宅市場
| 価格 | 5,130万円値下がり ![]() |
||||
|---|---|---|---|---|---|
| 所在地 | 東京都東村山市廻田町4丁目
この地域周辺の物件を見る |
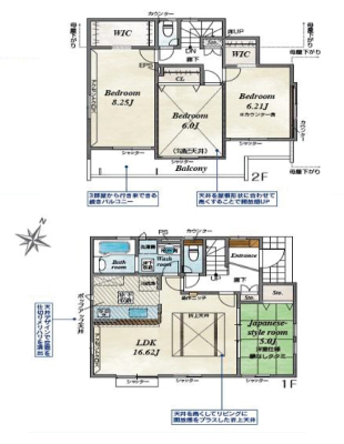
土地面積 | 126.48m² (38.26坪) | 建物面積 | 100.96u |
| 築年月 | 2026年3月築 | 間取り | 4LDK (LDK16.62/和室5/洋室8.25/洋室6.21/洋室6) | ||
| 交通 |
西武西武園線 西武園 徒歩13分
西武新宿線 東村山 徒歩17分 |
||||
| 特徴 |
|
|---|---|
| セールスコメント | - |
| 採光面 | - | 構造/階数 | 木造/地上2階建 |
|---|---|---|---|
| 建ぺい率 | 50% | 容積率 | 100% |
| 駐車場 | 有 2台可(車種によります) | 現況/引渡し | 完成/即時 |
| 土地権利 | 所有権 | 私道負担面積 | あり 持分:私道持分309平米×1/11、フットパス持分12平米×1/11 |
| 接道状況 | 接道: 南 私道 道路幅: 5m 接道: 東 私道 道路幅: 5m |
用途地域 | 第一種低層住居専用地域 - - |
| セットバック | - | 法令上の制限 | 第一種高度地区、準防火地域、航空法、宅地造成及び特定盛土等規制法 |
| 地目 | 宅地 | 地勢 | |
| 建築確認番号 | 第R07SHC122894号 | 都市計画 | 市街化区域 |
| 取引態様 | 仲介 | ||
| 情報更新日 | 2026年05月07日 | 次回更新日 | 2026年05月21日 |
| リフォーム箇所 | リフォーム時期 | ||
| リフォーム補足 | |||
| 備考 | - | ||
| 小学校区 | 東村山市立回田小学校 (東京都東村山市) この学区の他の物件を見る |
中学校区 | 東村山第四中学校 (東京都東村山市) この学区の他の物件を見る |
|---|
| 価格 | 万円 | ||
|---|---|---|---|
| 年利率 | % |
||
| ボーナス払い | 返済年数 | ||
| 頭金 | 直接入力する | 万円 | |

毎月のご返済額 |
ボーナス(×年2回) |
物件価格5,130万円 |
クラブ特典
弊社グループ会社で建てた
新築一戸建てを会員様限定で
先行配信いたします!
人気の物件はホームページ掲載前に成約になってしまうこともございますので、
お早めにお問合せ下さい!
早めにチェック!
予告物件
会員様先行
公開中
価格変更しました!(4月27日)