武蔵村山市神明1丁目全3棟・新築住宅・1号棟 東京都武蔵村山市神明1丁目|3,880万円の新築一戸建て|株式会社住宅市場
| 価格 | 3,880万円 ![]() |
||||
|---|---|---|---|---|---|
| 所在地 | 東京都武蔵村山市神明1丁目
この地域周辺の物件を見る |
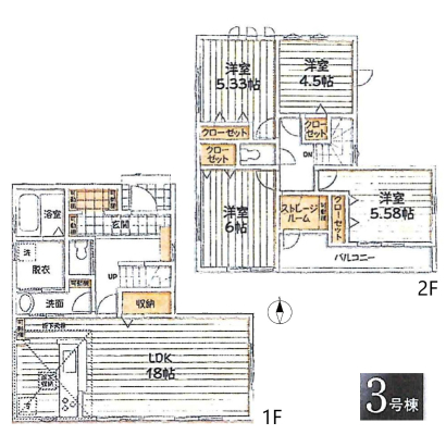
土地面積 | 124.57m² (37.68坪) | 建物面積 | 98.01u |
| 築年月 | 2026年1月築 | 間取り | 3SLDK (LDK17.5/洋室7/洋室6/洋室5.33/S3.75) | ||
| 交通 |
多摩都市モノレール 上北台 徒歩24分
|
||||
| 特徴 |
|
|---|---|
| セールスコメント | - |
| 採光面 | - | 構造/階数 | 木造/-階建 |
|---|---|---|---|
| 建ぺい率 | 40% | 容積率 | 80% |
| 駐車場 | 有 2台可(車種によります) | 現況/引渡し | -/2026年2月中旬 |
| 土地権利 | - | 私道負担面積 | - |
| 接道状況 | 接道: 北 公道 道路幅: 6m | 用途地域 | 第一種低層住居専用地域 - - |
| セットバック | - | 法令上の制限 | |
| 地目 | 宅地 | 地勢 | |
| 建築確認番号 | 第25UDI1W建07252号 | 都市計画 | - |
| 取引態様 | 仲介 | ||
| 情報更新日 | 2026年04月21日 | 次回更新日 | 2026年05月05日 |
| リフォーム箇所 | リフォーム時期 | ||
| リフォーム補足 | |||
| 備考 | - | ||
| 小学校区 | 武蔵村山市立第三小学校 (東京都武蔵村山市) この学区の他の物件を見る |
中学校区 | 第三中学校 (東京都武蔵村山市) この学区の他の物件を見る |
|---|
| 価格 | 万円 | ||
|---|---|---|---|
| 年利率 | % |
||
| ボーナス払い | 返済年数 | ||
| 頭金 | 直接入力する | 万円 | |

毎月のご返済額 |
ボーナス(×年2回) |
物件価格3,880万円 |
![]() |
![]() |
武蔵村山市神明1丁目
2730万円〜4180万円 |
クラブ特典
弊社グループ会社で建てた
新築一戸建てを会員様限定で
先行配信いたします!
人気の物件はホームページ掲載前に成約になってしまうこともございますので、
お早めにお問合せ下さい!
早めにチェック!
予告物件
会員様先行
公開中
-