小平市小川町1丁目全3棟・新築住宅・C号棟 東京都小平市小川町1丁目|5,390万円の新築一戸建て|株式会社住宅市場
| 価格 | 5,390万円 ![]() |
||||
|---|---|---|---|---|---|
| 所在地 | 東京都小平市小川町1丁目
この地域周辺の物件を見る |
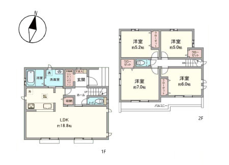
土地面積 | 103.35m² (31.26坪) | 建物面積 | 98.53u |
| 築年月 | 2025年11月築 | 間取り | 4LDK (LDK18.8/洋室5/洋室5.2/洋室6/洋室7) | ||
| 交通 |
西武拝島線 東大和市 徒歩9分
|
||||
| 特徴 |
|
|---|---|
| セールスコメント | - |
| 採光面 | - | 構造/階数 | その他/地上2階建 |
|---|---|---|---|
| 建ぺい率 | -% | 容積率 | -% |
| 駐車場 | - カースペース1台分(車種によります) | 現況/引渡し | 建築中/2025年11月中旬 |
| 土地権利 | - | 私道負担面積 | - |
| 接道状況 | 接道: 南 私道 道路幅: 4m 接道: 東 私道 道路幅: 4m |
用途地域 | 第一種低層住居専用地域 第二種中高層住居専用地域 - |
| セットバック | - | 法令上の制限 | 準防火地域、第一種高度地区、景観法、航空法 |
| 地目 | 宅地 | 地勢 | |
| 建築確認番号 | 第HPA-25-07058-1号 | 都市計画 | 市街化区域 |
| 取引態様 | 媒介 | ||
| 情報更新日 | 2025年11月11日 | 次回更新日 | 2025年11月25日 |
| リフォーム箇所 | リフォーム時期 | ||
| リフォーム補足 | |||
| 備考 | 建ぺい率:40%・60% 容積率:80%・200% ※容積率については、用途地域の面積により加重平均されます。 また、前面道路幅員による制限があります。 |
||
| 小学校区 | 小平市立小平第十二小学校 (東京都小平市) この学区の他の物件を見る |
中学校区 | 小平第五中学校 (東京都小平市) この学区の他の物件を見る |
|---|
| 価格 | 万円 | ||
|---|---|---|---|
| 年利率 | % |
||
| ボーナス払い | 返済年数 | ||
| 頭金 | 直接入力する | 万円 | |

毎月のご返済額 |
ボーナス(×年2回) |
物件価格5,390万円 |
![]() |
![]() |
小平市小川町1丁目
350万円〜8850万円 |
クラブ特典
弊社グループ会社で建てた
新築一戸建てを会員様限定で
先行配信いたします!
人気の物件はホームページ掲載前に成約になってしまうこともございますので、
お早めにお問合せ下さい!
早めにチェック!
予告物件
会員様先行
公開中
-