シティコーポパルナス美住町パート1 東京都東村山市美住町2丁目|1,050万円の中古マンション|分譲住宅や新築物件|株式会社住宅市場
| 価格 | 1,050万円 ![]() |
||||
|---|---|---|---|---|---|
| 所在地 | 東京都東村山市美住町2丁目
この地域周辺の物件を見る |
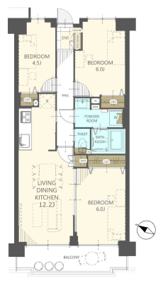
専有面積 | 41.82u | 築年月 | 1985年12月築 |
| 交通 |
西武新宿線 東村山 徒歩9分
西武国分寺線 東村山 徒歩9分 |
管理費等 | 6,400円 | 修繕積立金 | 6,330円 | 所在階/階数 | 3階/地上4階建 | バルコニー面積 | 4.7m² |
| 間取り | 3DK (DK/洋室/洋室/洋室) | ||||
| 特徴 |
|
|---|---|
| セールスコメント | - |
| 採光面 | - | 取引態様 | 仲介 |
|---|---|---|---|
| 現況 | 空家 | 引渡し | 相談 |
| 総戸数 | 40戸 | 構造 | その他 |
| テラス面積 | - | 専用庭面積 | - |
| 駐車場 | なし | 駐輪場 | - |
| 建物権利 | - | 土地権利 | - |
| 用途地域 | 準工業地域 - - |
管理態様 | 管理形態:全部委託 管理組合:- 管理会社:株式会社アルプ |
| 情報更新日 | 2026年02月06日 | 次回更新日 | 2026年02月20日 |
| リフォーム箇所 | リフォーム時期 | ||
| リフォーム補足 | |||
| 備考 | 売主契約不適合責任免責 現状有姿 バイク置場、自転車置場は指定の空いている場所へ駐輪(駐輪シール要) 2025〜2026年大規模修繕工事実施予定 |
||
| 小学校区 | 東村山市立富士見小学校 (東京都東村山市) この学区の他の物件を見る |
中学校区 | 東村山第七中学校 (東京都東村山市) この学区の他の物件を見る |
|---|
| 価格 | 万円 | ||
|---|---|---|---|
| 年利率 | % |
||
| ボーナス払い | 返済年数 | ||
| 頭金 | 直接入力する | 万円 | |

毎月のご返済額 |
ボーナス(×年2回) |
物件価格1,050万円 |
クラブ特典
弊社グループ会社で建てた
新築一戸建てを会員様限定で
先行配信いたします!
人気の物件はホームページ掲載前に成約になってしまうこともございますので、
お早めにお問合せ下さい!
早めにチェック!
予告物件
会員様先行
公開中
-