小平市上水新町3丁目・新築住宅 東京都小平市上水新町3丁目|5,990万円の新築一戸建て|株式会社住宅市場
| 価格 | 5,990万円 ![]() |
||||
|---|---|---|---|---|---|
| 所在地 | 東京都小平市上水新町3丁目
この地域周辺の物件を見る |
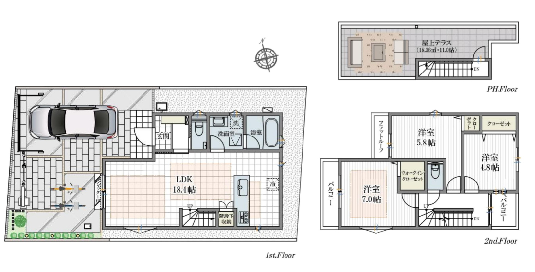
土地面積 | 113.24m² (34.25坪) | 建物面積 | 90.2u |
| 築年月 | 2025年10月築 | 間取り | 3LDK (LDK18.4/洋室7/洋室5.8/洋室4.8) | ||
| 交通 |
西武国分寺線 鷹の台 徒歩8分
|
||||
| 特徴 |
|
|---|---|
| セールスコメント | - |
| 採光面 | - | 構造/階数 | その他/地上2階建 |
|---|---|---|---|
| 建ぺい率 | 40% | 容積率 | 80% |
| 駐車場 | 有 | 現況/引渡し | 建築中/相談 |
| 土地権利 | - | 私道負担面積 | - |
| 接道状況 | 接道: 西 私道 道路幅: 4m | 用途地域 | 第一種低層住居専用地域 - - |
| セットバック | - | 法令上の制限 | - |
| 地目 | 宅地 | 地勢 | |
| 建築確認番号 | 都市計画 | - | |
| 取引態様 | 仲介 | ||
| 情報更新日 | 2025年11月13日 | 次回更新日 | 2025年11月27日 |
| リフォーム箇所 | リフォーム時期 | ||
| リフォーム補足 | |||
| 備考 | - | ||
| 小学校区 | 小平市立小平第一小学校 (東京都小平市) この学区の他の物件を見る |
中学校区 | 小平第五中学校 (東京都小平市) この学区の他の物件を見る |
|---|
| 価格 | 万円 | ||
|---|---|---|---|
| 年利率 | % |
||
| ボーナス払い | 返済年数 | ||
| 頭金 | 直接入力する | 万円 | |

毎月のご返済額 |
ボーナス(×年2回) |
物件価格5,990万円 |
![]() |
![]() |
小平市上水新町3丁目
2280万円〜5990万円 |
クラブ特典
弊社グループ会社で建てた
新築一戸建てを会員様限定で
先行配信いたします!
人気の物件はホームページ掲載前に成約になってしまうこともございますので、
お早めにお問合せ下さい!
早めにチェック!
予告物件
会員様先行
公開中
-